Easy Maker
A space to make, fix, make, manufacture or store. This space is on the ground floor with a garage door. A great space in a an unbeatable location for an entrepreneurial maker, creator or fixer.

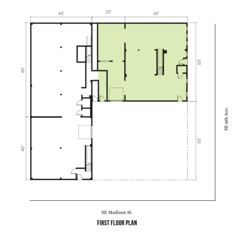
Open floorplan / 1 bathroom / Garage door access / on-site parking
Possible uses: light manufacturing, production, storage, bike repair or maker space. Possible upgrade to brewing/distilling with small storefront. Can be subdivided.
Easy Maker
Open floorplan / 1 bathroom / Garage door access / on-site parking
3000 sq.ft.
- New Heating and A/C system
- New LED lighting
- Remodeled bathroom
- Large glass garage door



